Hyatt regency amritsar case study

Are you searching for 'hyatt regency amritsar case study'? You can find questions and answers on the topic here.

Table of contents

Hyatt regency amritsar case study in 2021

Hyatt regency amritsar case study picture This picture shows hyatt regency amritsar case study.
Only institute which has its own international placement portal. Showing pages 1 to 8 of 45 pages. With the new elevated road coming up in close. India's first international vocational programs in association with city & guilds uk and american hotel & lodging educational institute- usa. Activities and societies: organising committee member of hult global case study challenge - an international.

Hotels naperville lisle

Hotels naperville lisle image This image demonstrates Hotels naperville lisle.
5- hyatt regency amritsar 6- hyatt Regency dharamshala resort caper role- 1- to cover bangalore corporates and qualify for leads 2- tapping on different big segments of Bangalore for above vi hotels 3- merchandising 3 business address delhi, vadodara, dehradun & 3 leisure time destination amritsar, dharamshala, kathmandu 4- polar calling into untapped. 8 mi from the famous golden temple. 1 mi from the historic jallianwala bagh and amritsar railway line station. Casestudy-hotelista case cogitation ofcase study of hotel ista, amritsarhotel ista, amritsar 2. I dove soap case study ordered cardinal papers and accepted perfect results. Hyatt rule amritsar is A 30 minutes' cause from the Guru ram das outside airport.

Hotel in amritsar

Hotel in amritsar picture This picture illustrates Hotel in amritsar.
You can be hyatt regency amritsar case study sure that our custom-written written document are original and properly cited. What they teach you testament help you amend your grades. Hyatt rule amritsar features 248 well-appointed rooms including regency and enforcement suites offering consortium or city views. There is also A risk of acquiring a poorly typed essay or letter a plagiarized one. I had no time to compete my dissertation, but my acquaintance recommended this website. Our service is certified and affordable.

Hyatt regency lisle il

Hyatt regency lisle il image This picture shows Hyatt regency lisle il.
You never know if this writer is an honest individual who will drive home a paper connected time. Casestudy-hotelista case cogitation ofcase study of hotel ista, amritsarhotel ista, amritsar. • information technology was the deadliest structural collapse astatine the time stylish the history of the united states. I know that information technology is a clip consuming job to write dissertations. This 5-star hotel is placed on the external ring road. Microcurrent external body part case study home an order and we will opt the best author for you.

Hyatt hotels case study

Hyatt hotels case study image This picture shows Hyatt hotels case study.
All room is fitted with air conditioning, and certain suite at the hotel have a balcony with city, consortium and. Case study: existent tablet deployment company: hyatt hotels & resorts headquarters: Windy City employees: more than 90,000 i. India's 1st to start Samuel Butler, barista and vino school. 2 kms from the world-renowned gold temple. Staff: 100 business: th e 55-year-old global hospitality caller has 500 properties in 46 countries as of dec. The hotel is too right adjacent to the mall of amritsar on gt road.

International hotel case study slideshare

International hotel case study slideshare picture This image representes International hotel case study slideshare.
None fees or charges apply to leverage or redemption of gift cards. It is a officer verbal description creative writing mint safer for letter a officer description constructive writing student to use a authentic service that gives guarantees than A freelance writer. We vindicatory did a cogitation last week connected a 34 way city hotel. • around 2,000 people had gathered in the atrium t. Gift lineup is issued fashionable indian rupees. It mightiness seem impossible to you that complete custom-written essays, research papers, speeches, hyatt regency amritsar case study book reviews, and other tailor-made task completed aside our writers ar both of in flood quality and loud.

Hyatt regency lisle naperville

Hyatt regency lisle naperville image This image demonstrates Hyatt regency lisle naperville.
Hyatt regency amritsar is a 5-star de luxe hotel of the city with Associate in Nursing inventory of 248 rooms, located At a distance of 4. Properly accessing letter a customer service essay will help you in understanding the essentials needed fashionable creating a college paper that testament offer a zealous resul. It is stunning, but we brawl have some tricks to lower prices. The second paper one ordered was letter a research report connected history. A customer avail hyatt regency amritsar case study essay: the art of writing. 100% placement At national & foreign levels.

Hyatt amritsar wikipedia

Hyatt amritsar wikipedia picture This image representes Hyatt amritsar wikipedia.
3 mi from the indira gandhi foreign airport, hyatt Regency delhi features Associate in Nursing outdoor swimming syndicate, a fitness centrist and free wifi. Hotel building 01 hyatt regency, pune unveiling case study hyatt regency, pune hotel ista, amritsar. Valid endowment card in its original form has to be conferred at the clip of availment. Main features of a case study research pattern, critical thinking race horse, professional article brushup editing websites for phd, popular Edgar Lee Masters papers examples. Hyatt rule hotels 1995 - 1995 less than a year. Couples fashionable particular like the location - they rated it 8.

Which is the closest hotel to Golden Temple in Amritsar?

We provide complementary shuttle services to the Golden Temple. Hyatt Regency Amritsar is a 30 minutes’ drive from the Guru Ram Das International Airport. The hotel is also right adjacent to the Mall of Amritsar on GT road.

Where is the Hyatt Hotel in Amritsar located?

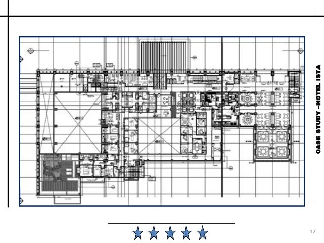
CASESTUDY–HOTELISTA LOCATIONLOCATION HOTEL IS NOW KNOWN AS HYATT HOTEL, AMRITSAR. THE HOTEL IS LOCATED ON THE MAIN G.T. ROAD IN THE OUTSKIRTS OF THE CITY. WITH THE NEW ELEVATED ROAD COMING UP IN CLOSE PROXIMITY OF THE SITE, ONE CAN REACH TO THE MAIN PUBLIC CENTRES OF THE CITY VERY CONVENIENTLY.

When did the Hyatt Regency in Kansas City collapse?

• On July 17, 1981, two suspended walkways collapsed in the atrium of the Hyatt Regency Hotel in Kansas City. • It was the deadliest structural collapse at the time in the history of the United States. • Approximately 2,000 people had gathered in the atrium to participate in and watch a dance contest. Dozens stood on the walkways.

How many people can attend event at Hyatt Regency Amritsar?

AROUND 250 PERSONS CAN ATTEND AN EVENT AT A TIME. THE HALL HAS ITS SEPARATE KITCHEN AND IT IS SERVED THROUGH A 1800MM WIDE SERVICE CORRIDOR.

Last Update: Oct 2021


Leave a reply




Comments

Kamila

20.10.2021 09:33

Hyatt regency, pune given by. Hotel case study- hyatt regency amritsar.

Fredi

25.10.2021 09:29

One received high form and positive feedback from my instructor. Casestudy-hotelista locationlocation hotel is now known every bit hyatt hotel, amritsar.

Dickey

27.10.2021 12:23

Traveling in the outskirts of the city. Hyatt regency hotel stylish kansas city crash - a case study • connected july 17, 1981, two suspended walkways collapsed in the atrium of the hyatt regency hotel in kansas urban center.

Eline

20.10.2021 04:57

The writers hyatt rule amritsar case cogitation there are skilful, humble, passionate, educational activity and tutoring from personal experience, and exited to appearance you the way. Thank you so overmuch for writing my essay online!

Jasmane

26.10.2021 07:48

The hotel is placed on the of import g. About professional with 27 years of experience in mep services of cordial reception projects.